Details

Updated on April 21, 2026 at 5:36 pm
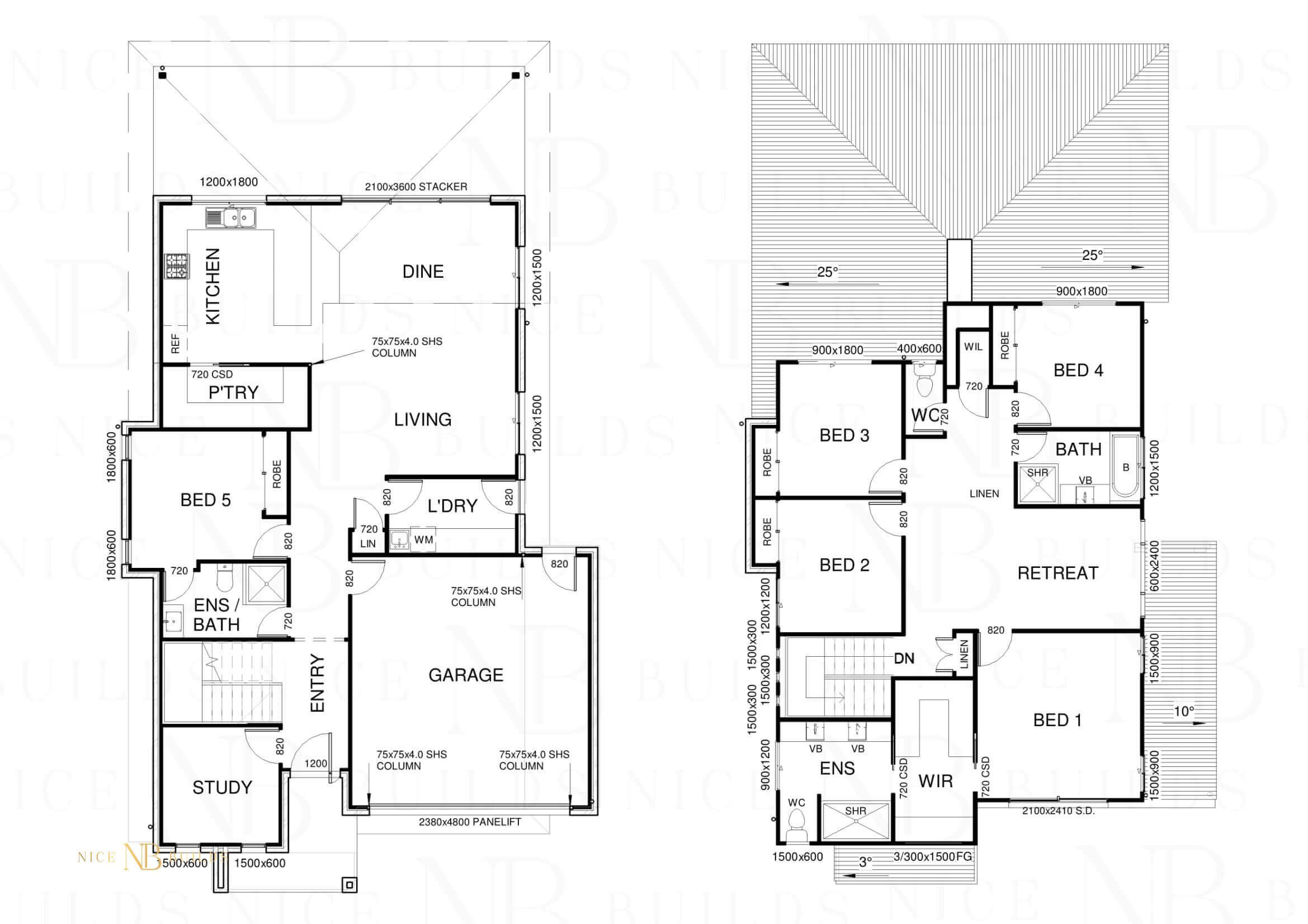
  • Property ID Dalby
  • Property Size 286.7 m²
  • Bedrooms 5
  • Bathrooms 3
  • Garages 2
  • Garage Size 34.2 m²
  • Property Type Double Storey

Overview

Property ID: Dalby
  • Double Storey
  • Property Type
  • 5
  • Bedrooms
  • 3
  • Bathrooms
  • 2
  • Garages
  • 286.7 m²
  • Area Size

Description

Nice Builds Full Turnkey Package Highlights:

✦ 2590mm ceiling height on the ground floor and 2440mm ceiling height on the first floor.
✦ 1200mm wide entry door
✦ ⁠6 Zones ducted air conditioning
✦ 900mm Appliances
✦ ⁠Brick rendered
✦ ⁠20mm stone bench tops to kitchen, bathrooms and laundry
✦ ⁠Soft closure cabinetry throughout
✦ ⁠Wall hung vanities with above countertop basins
✦ ⁠Under mount sink plus gooseneck tap-wear to kitchen and laundry
✦ ⁠Porcelain 600×600 tiles to floors throughout as per plan and Alfresco
✦ Floor to ceiling ⁠600×300 Gloss white or Matt white rectified wall tiles to bathrooms and Ensuite
✦ ⁠Diamond barrier screens to windows and sliding doors
✦ ⁠Quality carpets, mirrored robes & rollers blinds throughout
✦ Fencing and landscaping
✦ ⁠Salt and Pepper Exposed aggregate driveway
✦ Quality appliances and many more…

Floor Plans

Contact Information

View Listings
Nice Builds
  • Nice Builds

Enquire About This Property

Similar Listings

All information provided on this website is for general informational purposes only and is subject to change without notice. While every effort is made to ensure the accuracy of details such as pricing, availability, and inclusions, we recommend that you verify all information directly with our team. Property features, designs, and specifications may vary based on location and other factors. Individual homes may be subject to additional terms and conditions, including specific disclaimers applicable to each property.

Compare listings

Compare