Moggill QLD 4070
Featured
House & Land Package
- From $1,275,590
Featured
House & Land Package
Moggill QLD 4070
- From $1,275,590
Details
Updated on April 23, 2026 at 12:20 pm- Price From $1,275,590
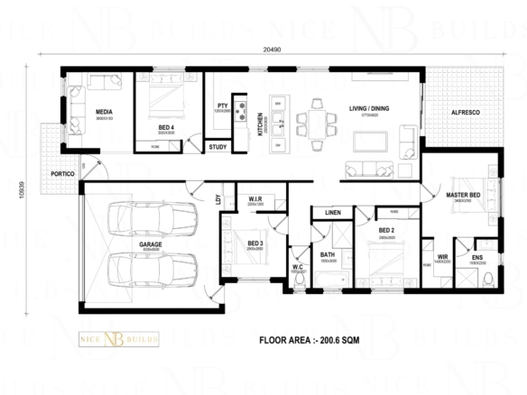
- Property Size 200.6 m²
- Land Area 790 m²
- Bedrooms 4
- Bathrooms 2
- Garages 2
- Property Type Single Storey
Overview
- Single Storey
- 4
- 2
- 2
- 200.6 m²
Description
Fixed-price & full-turnkey house & land package available in Moggill
Welcome to your new home in a peaceful suburb, Moggill! Moggill is a suburb in the Ipswich region of Queensland, Australia.
This spacious modern home features 4 bedrooms, 2 bathrooms, 2 living areas, and a double garage, perfectly designed for comfortable family living. Set on a generous block of land, the home offers an open-plan layout, a stylish kitchen with stone benchtops, and beautifully appointed bathrooms. Enjoy ducted air conditioning, quality carpets, and a landscaped backyard, ideal for both everyday living and entertaining.
Mortgage Calculator
Monthly
- Down Payment
- Loan Amount
- Monthly Mortgage Payment
Contact Information
View ListingsSimilar Listings
Regents Park QLD 4118
From $1,309,000
Caboolture QLD 4510
From $830,039
Logan Reserve QLD 4133
From $915,000
All information provided on this website is for general informational purposes only and is subject to change without notice. While every effort is made to ensure the accuracy of details such as pricing, availability, and inclusions, we recommend that you verify all information directly with our team. Property features, designs, and specifications may vary based on location and other factors. Individual homes may be subject to additional terms and conditions, including specific disclaimers applicable to each property.
- Nice Builds















